Exposé 120
Große Singlewohnung mit Stellplatz, EBK, Waschmaschine, Balkon und tollem Ausblick
- Objekt-Nr:120
- Immobilienart:Wohnung
- Vermarktungsart:Kauf
- Adresse:76534 Baden-Baden
- Region:Deutschland
Details zur Immobilie
Preise
- Kaufpreis: 125.000,00 EUR
- inkl. Stellplatz: ja
- Nebenkosten inkl. Heizkosten: ja
- Hausgeld: ca. 280,00 EUR
- provisionspflichtig: ja
Flächen
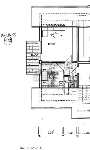
- Wohnfläche: ca. 43,79 m²
- Zimmerzahl: 1
- Anzahl Badezimmer: 1
- Anzahl Wohn-/ Schlafzimmer: 1
- Anzahl Balkons: 1
- Anzahl Stellplätze: 1
- Stellplatzart: Außenstellplatz
- Kellerfläche: ca. 3 m²
Ausstattung
- Art der Ausstattung: normal
- Etage: 2
- Gesamtetagenzahl: 4
- Heizungsart: Zentralheizung
- Bodenbelag: Fliesen, Laminat
- Küche: Einbauküche
- Badezimmer: mit Anschluss für Waschmaschinen, mit Badewanne, mit Fenster
- Serviceleistungen: Hausmeister
- Keller: ja
- Balkon / Terrasse: ja
- Ausrichtung Balkon / Terrasse: West
- Technik: Kabel-TV
- Verglasung: doppelt verglast
- Fenster: Holz
- Rollladen: ja
- Rollladen (Art): Kunststoff
- Türen (innen): Holz
Umfeld
- Gebiet: Wohngebiet
- Aussicht: Fernblick
- Distanz zum Bus: ca. 100 m
- Distanz zum Fernbahnhof: ca. 7 km
- Distanz zum Flughafen: ca. 15 km
- Distanz zur Autobahn: ca. 8 km
- Distanz zum Zentrum: ca. 5 km
- Distanz zur Naherholung: ca. 100 m
- Distanz zum Skigebiet: ca. 20 km
Zustandsangaben
- Baujahr: 1974
- Alter: Neubau
- Zustandsart: gepflegt
- Bauphase: Bau abgeschlossen
Verwaltung
- vermietet: nein
- verfügbar ab: n. Abspr.
- Wohnungsnummer: 4
Energieausweis
- Energieausweis vorhanden: ja
- Energieeffizienzklasse: F
- erstellt am: 03.11.2017
- gültig bis: 03.11.2027
- Art des Energieausweises: nach Verbrauch
- Verbrauchskennwert insgesamt: ca. 87 kWh/(m²a)
- Verbrauch inkl. Warmwasser: ja
powered by OpenEstate
Deutsch
español
français
English
русский
italiano